|
North Central Kansas Astronomical
Society
|
Home | Carbon
Stars | Double Stars | Galaxies |
Globular Clusters | Nebulae |
Open Clusters
Solar
System | Stars | Images |
Asterisms
| Student Images
| Current
Weather
NCKAS/KSU Public Outreach Observatory Project:
Initial Site Plans for Konza LTER
Observatory
 |
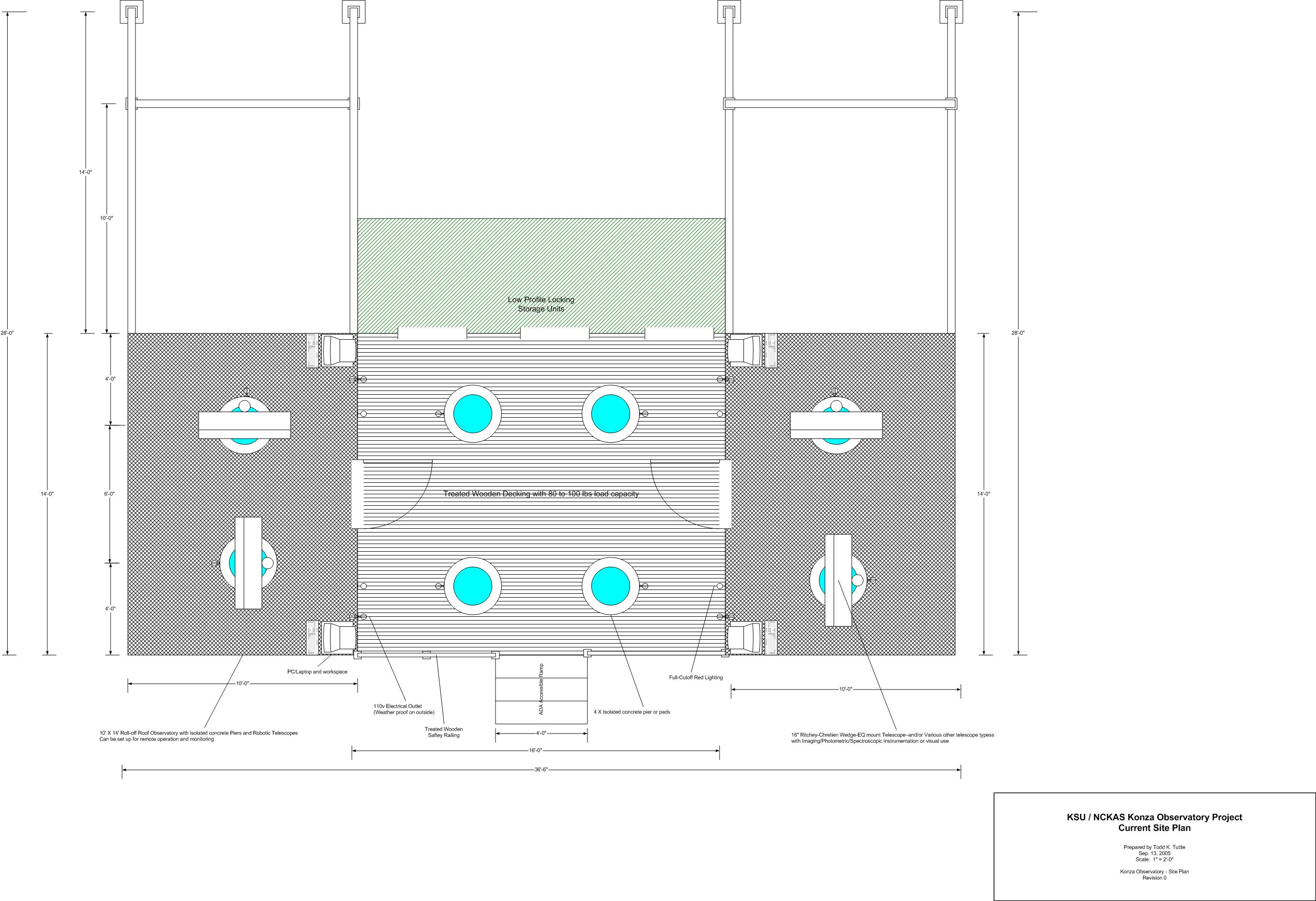
The Kansas State University Physics department and North Central Kansas Astronomical Society (NCKAS) propose to build a public observatory located at the KSU Konza Prarie Long-Term Ecological Research (LTER) facility south of Manhattan, KS. The observatory will house an 18.5 inch Cave telescope now located in the Kansas State physics department. In addition, the observatory would be equipped with a 16 inch Meade RCX400 Ritchey-Chretien observatory class telescope, and a variety of smaller state-of the-art telescopes and instrumentation to maximize hands-on learning opportunities. Click the image to bring up a large format or click here for an Adobe Acrobat version of the about blue-print. |
 |
3D Image example of free
standing decking |
Kansas State University Cave Optics 18.5"
Cassegrain & German Equitorial mount. Pictured in it's original location at
Cardwell Hall Observatory - f/20 Cassegrain focus configuration. Below the
images is a listing of the equipment and instruments. Click on each Thumbnail
image to download a larger image.
- 1963 18.5", f/20 Cave Astrola with massive Cave Pier and Mount.
Complete with Crawford style focuser and drawtube extensions, guide scope
and finder scope mounting brackets.
- 1939 7.5", f/14 Perkin, Elmer & Moffitt Refractor
- 4", f/10 W & D Mogey Brass Refractor
- 3" f/7.3 Cave Astrola Refractor Guide Scope
- 10X40mm Unitron Refractor Guide Scope
- 2" Finder scope
- 2 Heilioscope eyepiece - 1 complete, 1 needs work
- 2" 60mm Kellner eyepiece
- Unitron(?) .96" 18mm Kellner eyepiece
- 3 x 1-unknown brass eyepieces labeled: .4, .3, .6
- 1-1/4" Criterion AR 18mm eyepiece
- 1-1/4" Unlabeled 16mm eyepiece
- 1-1/4" Unlabeled Zoom Guiding eyepiece
- .96" H 12.5mm eyepiece (only label is the "H")
- .96" H 6.5mm eyepiece (only label is the "H")
- Various Photometers and photometric equipment
- Logbook starting with 1982 for observatory
If you wish to contact us, you can email nckas@nckas.org
This page updated:
09/14/05 01:52:11 PM
Home | Carbon Stars | Double
Stars | Galaxies | Globular Clusters | Nebulae | Open
Clusters
Solar System | Stars |
Images | Asterisms |
Student Images | Current Weather
© 2005- 2019 North Central Kansas Astronomical Society - All Rights Reserved